• ReArch

  • Professional Architecture

  • Research.

  • Reduce.

  • Realize.

Services

Every project begins with a conversation and a personal approach to researching the possibilities. Together, we reduce ideas into clear solutions and guide each step of the process from initial conception through design, permitting, and the realization of your project. Our goal is to make the process clear, collaborative, and rewarding.

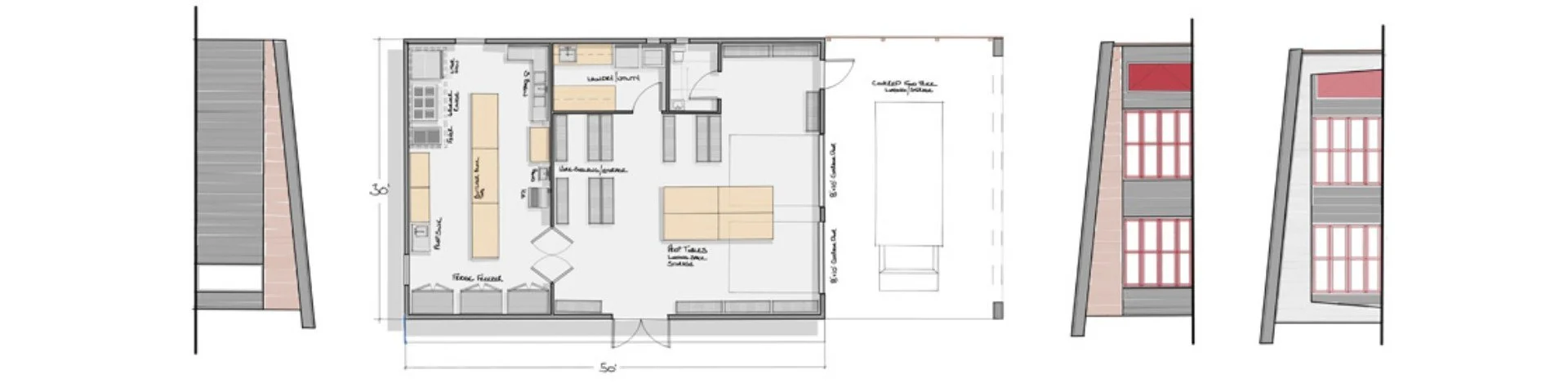
  • We design new buildings to add value to your site, your vision, and your investment.

  • We help expand what you already have by creating additions that improve function and maximize space.

  • We help you reimagine existing spaces so they serve today’s needs while honoring what makes them special.

  • We guide you through research, study options, and visualize possibilities to reduce risk and plan for the future.

  • We navigate local regulations and work closely with municipalities to move your project forward and add value to your community.

  • We evaluate building codes and compliance early, helping you avoid surprises and keep your project on track.

How can we help?

It all starts with a phone call. We’d love to hear what you’re planning, whether it’s a new building or a fresh idea for an existing space.   Share your name, phone, email, and a short description of what you are thinking, and we’ll reach out to schedule an introductory call to get started.